Fuchsiastraat 164, Den Haag

Kenmerken

Verkocht
Prijs
€ 595.000 k.k.
Wijk
Bomen- en Bloemenbuurt
Postcode
2565 PX Den Haag
Woningtype
Bovenwoning
Bouwjaar
1926
Soort bouw
Bestaande bouw
Kamers
6
Slaapkamers
5
Oppervlakte
137m²
Inhoud
465m³
Oplevering
In overleg

Download Brochure


  • Omschrijving

    Ruim dubbel bovenhuis met vijf slaapkamers, twee badkamers en een heerlijk dakterras
    Aan de rustige Fuchsiastraat, midden in de gewilde Bloemenbuurt, ligt dit lichte en goed ingedeelde dubbele bovenhuis met een woonoppervlak van circa 137 m². De woning beschikt over vijf slaapkamers, twee badkamers, een balkon van circa 6,1 m² én een riant dakterras van circa 23,4 m² — een ideale gezinswoning op een fijne locatie in Den Haag. Energielabel C.
    De buurt staat bekend om haar brede straten, karakteristieke woningen en prettige leefomgeving. Op loopafstand vind je diverse winkels, scholen en openbaar vervoer. Ook het strand van Kijkduin, de Bosjes van Pex en het Savornin Lohmanplein liggen op korte fietsafstand.

    Indeling
    Entree met meterkast en trap naar de eerste verdieping.
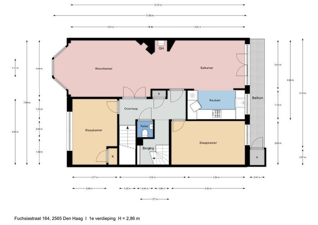
    De eerste verdieping is ruim en licht ingedeeld. Aan de voorzijde bevindt zich de sfeervolle woonkamer met erker (ca. 3,3 m breed), terwijl aan de achterzijde het eetgedeelte met open keuken is gesitueerd. De keuken is voorzien van diverse inbouwapparatuur en via de openslaande deuren heb je toegang tot het balkon (ca. 6,7 x 0,9 m). Daarnaast zijn er op deze verdieping twee slaapkamers — één aan de voorzijde en één aan de achterzijde — en een toilet in de hal.
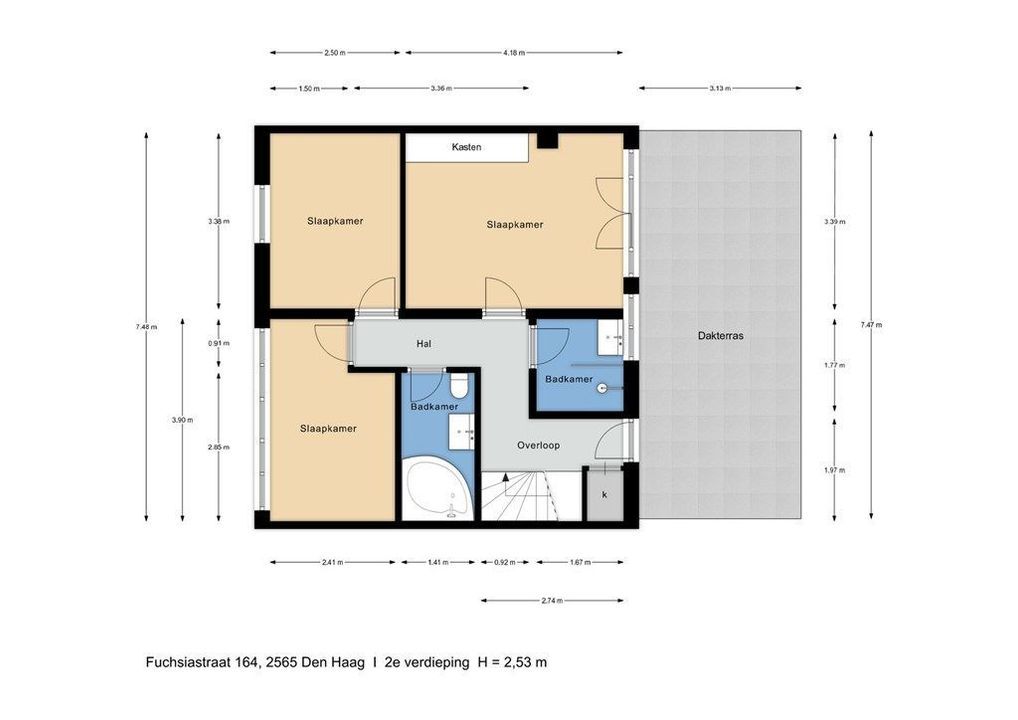
    Op de tweede verdieping bevinden zich drie goed bemeten slaapkamers en twee badkamers. De eerste badkamer is uitgerust met een ligbad, wastafel en toilet; de tweede badkamer beschikt over een douche en wastafel. Vanuit de slaapkamer aan de achterzijde heb je toegang tot het ruime dakterras (ca. 7,5 x 3,1 m), waar je de hele dag van de zon kunt genieten.

    Bijzonderheden
    -Gebruiksoppervlakte wonen: ca. 137 m²
    -Gebouwgebonden buitenruimte (balkon + dakterras): ca. 29,5 m²
    -Eeuwigdurende erfpacht van de gemeente Den Haag (AB 1986 herz. 1993).
    -Canon niet afgekocht; huidige canon € 633,60 per jaar, berekend naar een grondwaarde van € 14.300.
    -Inhoud woning: ca. 465 m³
    -Energielabel C
    -Actieve VvE, maandelijkse bijdrage € 80,00
    -Bouwjaar 1926
    -Vloerverwarming in beide badkamers, beide vernieuwd in 2024
    -Ouderdoms- en materialenclausule van toepassing
    -Aanvaarding: in overleg

    ***English***

    Spacious double upper house with five bedrooms, two bathrooms and a lovely roof terrace
    Located on the quiet Fuchsiastraat, in the heart of the sought-after Bloemenbuurt, this bright and well-laid-out double upper house offers approximately 137 m² of living space. The property features five bedrooms, two bathrooms, a balcony of approx. 6.1 m², and a generous roof terrace of approx. 23.4 m² — an ideal family home in a pleasant area of The Hague. Energy label C.
    The neighbourhood is known for its wide streets, characteristic architecture and pleasant living environment. Within walking distance you’ll find various shops, schools and public transport. The beach of Kijkduin, the Bosjes van Pex park and the Savornin Lohmanplein shopping area are all just a short bike ride away.

    Layout
    Entrance with meter cupboard and stairs to the first floor.
    The first floor is spacious and bright. At the front is the cosy living room with bay window (approx. 3.3 m wide), while at the rear you’ll find the dining area with open kitchen. The kitchen is equipped with various built-in appliances and gives access through French doors to the balcony (approx. 6.7 x 0.9 m). This floor also includes two bedrooms — one at the front and one at the rear — and a toilet off the hallway.

    The second floor offers three well-sized bedrooms and two bathrooms. The first bathroom is fitted with a bathtub, washbasin and toilet; the second bathroom has a shower and washbasin. From the rear bedroom you can access the spacious roof terrace (approx. 7.5 x 3.1 m), where you can enjoy the sun all day long.

    Details
    -Living area: approx. 137 m²
    -External outdoor space (balcony + roof terrace): approx. 29.5 m²
    -Perpetual leasehold from the Municipality of The Hague (General Provisions 1986, revised 1993)
    -Ground rent not redeemed; current annual canon €633.60, based on a ground value of €14,300
    -Volume: approx. 465 m³
    -Energy label C
    -Active owners’ association (VvE), monthly contribution €80.00
    -Year of construction: 1926
    -Underfloor heating in both bathrooms, both renovated in 2024
    -Ageing and materials clauses apply
    -Transfer: in consultation

  • Locatie

    [ { "address": "Fuchsiastraat 164", "zipCode": "2565 PX", "city": "Den Haag", "lat": 52.0699795, "lng": 4.2514681 } ]

  • Reageer

    Uw bericht is naar ons verzonden. Wij nemen zo snel mogelijk contact met u op.

    Sorry, we kunnen helaas niet met zekerheid vaststellen of je een mens of een geautomatiseerde bot/spammer bent. Hierdoor kunnen we het formulier dat je hebt ingevuld niet verzenden. Probeer het opnieuw of neem direct contact op met de makelaar via e-mail.

    Er is iets mis gegaan met het versturen van het formulier.
    Controleer of u alle velden (goed) heeft ingevoerd en probeer het nog een keer.

    recaptcha
    reCAPTCHA
    PrivacyTerms